
스케치업 독학 예제 1-3
스케치업 독학을 위한 예제1의 3번째 시간입니다. 지난 시간까지 벽체를 세웠다면 이제 문과 창문을 자리를 만들어주기위해 만들어준 벽체를 뚫는 방법을 알려드릴 예정입니다. 세세하게 설명 드릴 예정이니 다소 템포가 느리더라도 하나하나 따라오시는걸 추천 드립니다. 지난번 시간에도 말씀드렸지만 마우스보다 키보드 단축키를 활용하는 것을 연습하도록 하셔요
스케치업 독학 - 벽체 세우기 예제 1-2 (Line & Offset & Push Pull)
스케치업 독학 예제 1-2 스케치업을 독학하기 위한 예제 1 2번째 시간입니다. 인테리어 벽체를 세워 기초를 만드는 작업을 지난 시간에 이어서 할 예정입니다. 영상으로 설명드리는게 편하지만
obsession.betterthangood-life.com
지난번 예제를 하지 않으신 분들이라면 링크로 들어가 작업해 보시는 것을 추천드리고 한번 훑어 보셨을때 다 아는 내용이다 생각되신다면 아래의 스케치업 파일을 다운받으셔서 이번 예제를 함께해 주시면 되겠습니다. :)
자세히 알려드리다 보니 글이 너무길어져 나눠서 글을 작성하는 점 양해 부탁드립니다.
스케치업 독학 예제 1-3 서론
지난번 예제 1-1, 1-2를 통해 외벽과 내벽을 만들었습니다. 이번에는 문을 넣어주기전에 문이 들어갈 자리를 만들어 줄 예정입니다. solid tools 를 이용하여 만들어준 내벽이나 외벽을 뚫는 방법을 사용할 것인데 이전에 선행되어야 할 작업은 각 객체들이 Solid tools 를 사용 할 수 있는 Solid 객체임을 확인해야합니다. 내부의 오류가 있어서 Solid 가 아닌 객체들은 Solid tools를 활용할 수 없으니 아래의 링크로 Solid 객체 확인법과 수정법을 익히시고 오시는 것을 추천드립니다.
스케치업 무료 루비 Solid Inspector2 I 설치방법 및 사용법 ( Solid tools 안될때 )
스케치업 오류 스케치업에서 기본 기능 중인 하나인 Solid Tools 의 Outer Shells, intersect, Union, Subtract, Trim, Split 툴을 이용하다보면 'One or more of the selected objects is either not a solid or is locked. the non-solid/loc
obsession.betterthangood-life.com
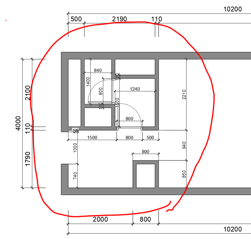
일반적인 문의 크기
- 아파트나 상가의 일반적인 문의 크기는 높이 2100에 폭 900 입니다. 하지만 화장실의 경우 바닥이나 천장에 수도 배관, 하수 배관이 들어가 문의 폭과 크기는 줄어드는 경우가 많으며 실외기실의 경우 또한 큰 문이 필요하지 않아 일반적인 문의 크기보다 작게 들어가는 경우가 많습니다. 어디까지나 일반적인 크기이며 더 클 수도 더 작을 수 도 있습니다. 화장실과 실외기실은 임의로 높이 2000, 폭 800으로 설정하고 작업하겠습니다.
일반적인 문 크기 높이 2100 x 폭 900
화장실, 실외기 실은 더 작은 경우 다수
스케치업 독학 예제 1-3
1. 파일 불러오기
- 어느 예제와 같이 시작 전에 파일을 불러와야합니다. 스케치업을 실행 하여 welcome to sketchup 창에서 Open File을 클릭하셔서 제가 위에서 첨부해드린 파일이나 기존에 작업하셨던 파일을 열어주시면 됩니다.

2. 실외기실 문자리 만들기
- 제가 첨부한 예제 완성 파일에 실외기실 벽체에 오류를 만들어 뒀습니다. 벽체를 구성하는 일부 라인들을 지워서 Solid tools 가 적용되지 못하도록 한 것입니다. 이를 해결하고 solid tools 로 문자리를 뚫어봅시다.
2-1 : 벽체 오류 해결하기
1. 그룹화된 벽체 클릭 한뒤 solid inspector 실행하여 오류 확인
2. 실외기실 안쪽에 벽체가 제대로 생성 되지 않은 것 확인
3. Surface Borders 는 자동으로 해결되지 않음
4. 벽체 더블 클릭하여 그룹 편집모드로 진입
5. Line Tool(L) 선택 하부의 이어지지 않은 부분 이어주기
6. Solid Inspector 로 확인




2-1 작업영상

2-2 : 벽체 뚫어 주기
1. 바닥에 800,800 직사각형 만든 후 Push Pull (P)를 이용하여 높이 2000만큼 올려주기
2. 만들어준 직육면체 세번 클릭한 뒤 오른쪽 마우스 클릭 하여 Make Group
3. Move Tool (M) 선택
4. 그룹화된 직육면체를 벽체의 외부 좌측 모서리로 이동
5. 앞으로 200 우측으로 200 옮겨주기
6. Solid Tool 중 Subtrack 클릭
7. 직육면체 클릭 후 벽체 클릭







2-2 작업영상

3. 기타 문자리 만들기
- 화장실과 화장실 내부의 샤워공간, 현관 문이 들어갈 개구부를 만들어주는 작업을 하겠습니다. 샤워실 공간의 경우 칸막이 도어가 들어갈 예정으로 천장부터 바닥까지 다 뚫어줄 것입니다. 현관문의 경우 일반적인 방문 크기보다 더 큰 높이 2200에 폭 1000의 개구부를 만들도록 하겠습니다.

3-1 : 화장실 문 개구부 만들기
1. 바닥에 가로세로 800의 직사각형 만든 후 Push Pull (P)을 선택하여 높이 2000의 직육면체 만들기
2. 만들어준 직육면체 세번 클릭하여 오른쪽 마우스 클릭 후 Make Group 선택
3. Move Tool 아이콘 선택 또는 단축키 M 클릭
4. 그룹으로 만들어진 직육면체 벽체의 외부 우측 모서리로 이동
5. 앞으로 200 좌측으로 500 옮겨주기
6. Solid Tool 의 Subtrack 클릭
7. 직육면체를 먼저 클릭 한 뒤 벽체를 클릭하여 Subtrack 작업









3-1 작업영상

3-2 : 화장실 샤워실 문 개구부 만들기
1. 내부 벽체를 더블 클릭하여 그룹 편집으로 진입
2. Rectangle tool(R) 선택
3. 화장실 벽체 상부에 사각형 만들어주기
4. Push Pull 도구를 이용하여 바닥까지 내리기





3-2 작업영상

3-3 : 현관 문 개구부 만들기
1. 바닥에 1000,1000 직사각형 만든 뒤 Push Pull (단축키P) 도구를 활용하여 높이 2100 올려주기
2. 직육면체를 그룹화 작업
3. move tool (m) 선택하여 직육면체의 우측 하단 모서리를 현관 자리의 모서리 로 옮기기
4. 좌측으로 50 이동 및 앞으로 200 이동
5. Solid tool 의 Subtrack 이용하여 직육면체 클릭 후 벽체 클릭
6. 오류가 생긴다면 벽체를 클릭하여 solid inspector 도구를 활용하여 오류 수정
7. 다시 subtrack 실행하여 직육면체 클릭 후 벽체 클릭










3-3 작업영상

오늘은 Solid tools를 이용하여 개구부 뚫는 작업을 했습니다.
하나하나 차근차근 따라오시다보면 원하는 모델링을 하실 수 있습니다.
화이팅!! :))))
'스케치업 > 스케치업 강좌' 카테고리의 다른 글
| 스케치업 독학 - 문틀과 문 만들기 2 (9mm 문선) I 예제 1- 5 (Follow me & tags) (0) | 2023.04.15 |
|---|---|
| 스케치업 독학 - 문틀과 문 만들기1 I 예제 1-4 ( Follow me & tags ) (0) | 2023.04.12 |
| 스케치업 독학 - 벽체 세우기 예제 1-2 (Line & Offset & Push Pull) (0) | 2023.03.31 |
| 스케치업 독학 - 벽체 세우기 예제 1-1 (Rectangle & Offset & Push Pull) (0) | 2023.03.27 |
| [Sketch Up] 스케치업 독학 시작하기 (인테리어 세팅법) (0) | 2023.03.23 |
댓글