
스케치업 독학 예제1-1
이번에는 스케치업을 독학하기 위한 첫번째 예제입니다. 선을 긋거나 사각형을 만들어 인테리어를 위한 벽체를 세우는 기본기 중에 기본기를 알려드리려고 합니다. 하나하나 차근차근 알려드릴 것이고 영상도 중간중간 넣어서 이해하기 쉽게 강의할 예정이니 찬찬히 따라오시면 스케치업을 활용하는데 한발 다가설 수 있습니다!!
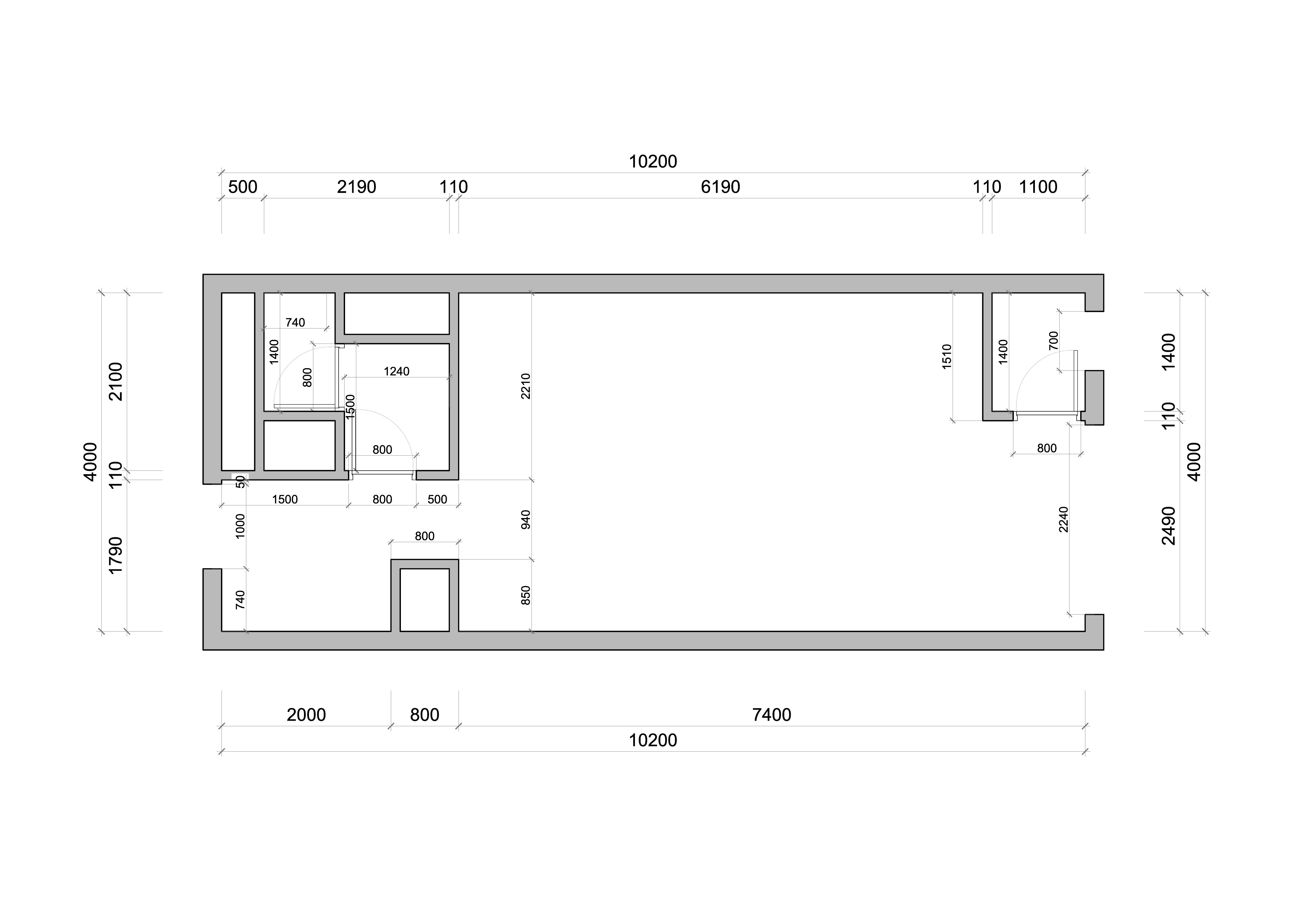
오늘 할 예제는 원룸의 뼈대가 되는 벽체를 세워보려고 합니다. 문사이즈, 천장높이 등 인테리어의 기본이 되는 치수들을 알아갈 수 있으니 치수를 그냥 따라하기 보다 문크기는 이게 일반적이구나 천장 높이는 이게 일반적이구나 를 기억하시면서 따라오시면 더 유익하게 강좌를 진행하실 수 있습니다 :) 첨부된 평면도를 다운받으셔서 출력을 하시거나 핸드폰에 다운로드 하셔서 이미지를 보시면서 하시면 편하게 작업하실 수 있습니다.
혹시라도 세팅을 아직 안하신 분들은 제 블로그의 세팅법을 참조하시어 세팅을 먼저 하시고 진행해주시면 됩니다.
[Sketch Up] 스케치업 독학 시작하기 (인테리어 세팅법)
스케치업 스케치업은 3D 모델링을 하는 프로그램입니다. 앳래스트 소프트웨어 회사에서 개발하였고 직관적이고 사용법을 배우기가 쉬워 인테리어, 건축, 조경, 무대 디자인 회사에서도 자주 사
obsession.betterthangood-life.com
따라하기
1. 새로운 파일 만들기
- 우선 스케치업을 켜서 파일을 생성해줍니다. 파일은 이전에 설명해드렸듯 Architectural Millimeters로 열어주시면됩니다. 파일을 생성하시면 사람이 우둑허니 서있는 첫 화면이 뜨게됩니다. 모델링을 하는데 사람은 필요 없으니 삭제해주도록 합니다. 그리고 새로운 파일을 생성하면 꼭 저장을 하는 습관을 들이도록 합시다.
○ 방법
1. Select tool 선택 (단축키 Space Bar)
2. 마우스로 한곳 클릭 후 클릭 유지하며 사람 선택
3. Del 키로 삭제
4. File 메뉴, Save 클릭 (단축키 Ctrl + S)
5. 원하는 곳에 파일명 예제1로 저장



2. 바닥면 그려주기(Rectangle 툴)
- 저희가 만들어줄 벽체는 내부의 크기 (내경)이 가로 10200mm , 세로 4000mm 인 방입니다.

○ Rectangle 툴 사용 방법 1.
1. Rectangle 툴 선택 (단축키 R)
2. 마우스로 한곳 클릭 후 적당한 사이즈로 만든후 클릭 (사이즈 미지정)
3. 10200, 4000 입력 후 엔터 (10200 콤마 4000 엔터 - 콤마까지 입력)
4. 바닥면 생성 완료

○ Rectangle 툴 사용 방법 2.
1. Rectangle 툴 선택 (단축키 R)
2. 마우스로 시작점 클릭 후 10200,4000 입력 후 엔터 (콤마까지 입력)
3. 바닥면 생성 완료

3. 벽체 만들기 (Offset & Group & Push Pull 툴)
- 기본 바닥면이 생겼다면 벽체를 올려줘야합니다. 저희가 필요한건 내부공간이 가로 10200mm, 세로 4000mm 이니 만들어준 바닥면 외부로 벽체를 만들어 줘야하겠습니다. 만약 외경치수가 나와있는 경우라면 안쪽으로 벽체를 세워줘야하겠죠?

- 만들어진 바닥면을 기준으로 Offset 을 이용하면 원하는 치수만큼 기존의 선을 늘려 줄 수 있습니다. 외벽은 건물마다 다른 두께를 가지고 있어서 인테리어 모델링을 하는데 크게 중요한 요소가 아닙니다. 임의의 값 200으로 Offset을 해봅시다.

○ Offset 사용 방법
1. Offset 툴 선택 (단축키 F)
2. 만든 바닥 면을 클릭
3. 200 입력 후 엔터
4. Offset 완료






- 이렇게 틀이 만들어졌다면 Push Pull 툴을 이용하여 벽체를 올려주면됩니다. 높이는 일반적인 아파트 높이인 2400으로 지정해주시면 됩니다. 추후에 작업성을 위해 바닥면을 그룹으로 만들어 주는것이 좋습니다. 그룹으로 나누지 않으면 새로만드는 객체와 붙을 수 있어서 작업이 많이 불편해 집니다. 그룹 생성시 기존과 다르게 선이나 면들이 따로 선택되지 않는것을 볼 수 있습니다. 이때 그룹된 객체를 더블 클릭하면 그룹을 편집할 수 있습니다.

○ Group 만드는 방법
1. Select tool 클릭 (단축키 Space Bar)
2. 만들어준 바닥면 빠르게 세번 클릭 (전체 선택)
3. 마우스 오른쪽 버튼 클릭
3. 메뉴중 Make Group 클릭
4. Group 생성 완료





○ Push Pull 툴 사용방법
1. Group으로 만든 객체를 더블클릭하여 그룹 내부로 진입 (객체를 둘러싼 점선 육면체 만들어진것 확인)
2. Push Pull 툴 선택 (단축키 P)
2. Offset 하여 만들어준 벽체면을 클릭
3. 마우스를 바닥면과 직교하게 이동
3. 클릭하지 않고 2400 입력 후 엔터 ( 우측하단 Dimension 창 노란색으로 변하는것 확인)
4. 벽체생성 완료





'스케치업 > 스케치업 강좌' 카테고리의 다른 글
| 스케치업 독학 - 문틀과 문 만들기 2 (9mm 문선) I 예제 1- 5 (Follow me & tags) (0) | 2023.04.15 |
|---|---|
| 스케치업 독학 - 문틀과 문 만들기1 I 예제 1-4 ( Follow me & tags ) (0) | 2023.04.12 |
| 스케치업 독학 - 문 뚫기 I 예제 1-3 ( Solid tools) (0) | 2023.04.10 |
| 스케치업 독학 - 벽체 세우기 예제 1-2 (Line & Offset & Push Pull) (0) | 2023.03.31 |
| [Sketch Up] 스케치업 독학 시작하기 (인테리어 세팅법) (0) | 2023.03.23 |

댓글