
스케치업 독학 예제 1-2
스케치업을 독학하기 위한 예제 1 2번째 시간입니다. 인테리어 벽체를 세워 기초를 만드는 작업을 지난 시간에 이어서 할 예정입니다. 영상으로 설명드리는게 편하지만 영상을 중간에 멈췄다가 다시 시작했다가 하며 배우는게 조금 힘들다고 생각해 글과 사진 위주로 설명을 드리려 합니다. 세세하게 설명해드릴 예정이니 찬찬히 따라오시고 도구를 사용할때 아이콘 보다 단축키를 사용하는 것을 생활화 해주세요 :)
스케치업 독학 - 벽체 세우기 예제 1-1 (Rectangle & Offset & Push Pull)
스케치업 독학 예제1-1 이번에는 스케치업을 독학하기 위한 첫번째 예제입니다. 선을 긋거나 사각형을 만들어 인테리어를 위한 벽체를 세우는 기본기 중에 기본기를 알려드리려고 합니다. 하나
obsession.betterthangood-life.com
혹시 지난번 게시물을 보지 않으셨다면 링크로 들어가셔서 작업을 해보시는 것을 추천드립니다. 하지만 처음부터 시작할 필요가 없다 생각하시는 분들은 아래의 스케치업 파일과 평면도를 이용하셔서 작업하시면 됩니다.

스케치업 독학 예제 1-2 서론
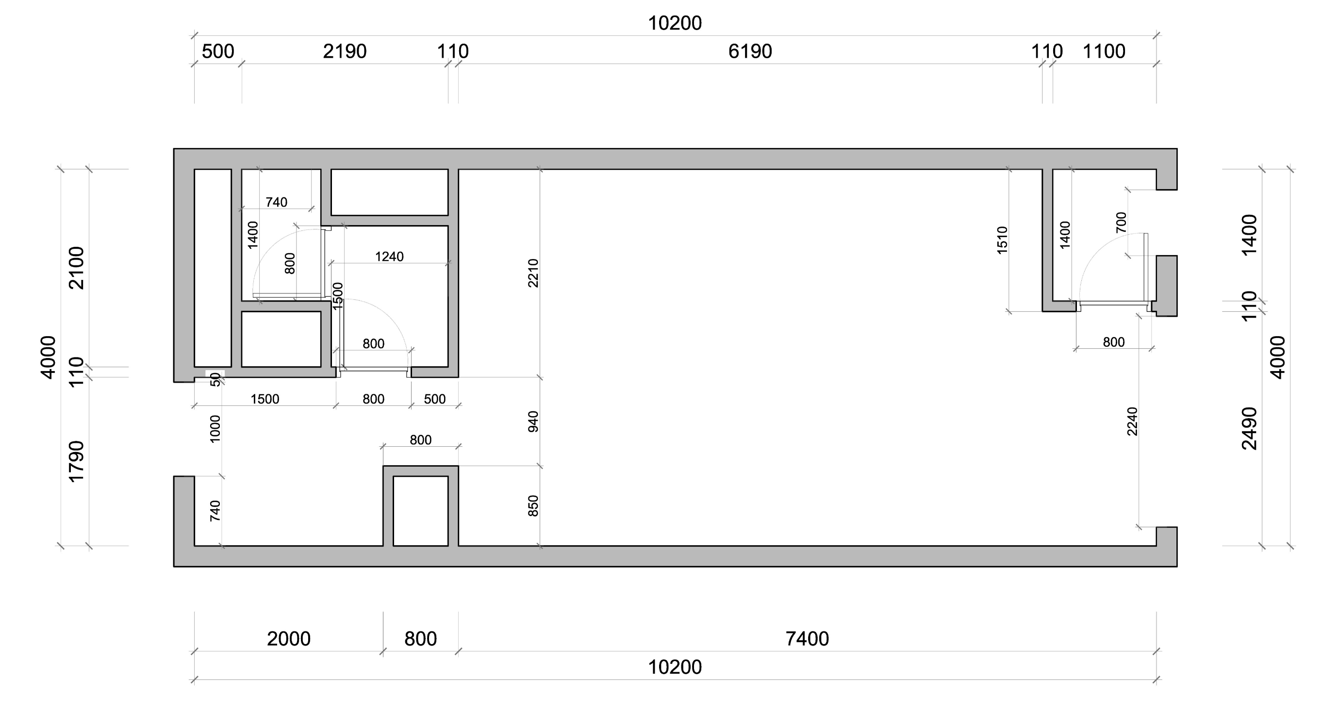
지난번 시간에는 외벽을 만들었고 이번시간에는 내벽을 세울 차례입니다. 외벽은 두께를 확인하기 힘들어서 인테리어 도면 작업시 내벽 두께와 차이를 주기위해 200으로 임의 설정 하였으며 내벽의 두께는 일반적으로 110으로 생각하시면 됩니다. 두께를 110mm 로 설정한 이유는 인테리어를 하시기위해서는 꼭 알고 계셔야합니다.
내벽의 두께가 110인 이유
- 아파트의 경우는 콘크리트로 벽체를 세워 층마다 벽체의 두께가 다소 다른 부분이 있습니다. 구조변경을 하는 경우가 아니라면 실의 내경이 중요한 아파트 인테리어에선 벽체의 두께가 영향을 미치는 부분은 미미하기에 110mm로 임의 설정을 합니다. 하지만 새로 벽체를 세우는 경우라면 일반적으로 110mm 로 하는데 이는 대부분의 벽체를 목공이나 경량 철골로 벽체로 세우기 때문입니다.

- 이미지에서 보시면 일반적으로 벽체는 가운데 구조재가 들어가고 양옆으로 석고보드 2장씩 시공을 해주는게 일반적입니다. 이를 석고보드 2P 시공 이라고 합니다. 석고보드 9.5mm 앞뒤로 총 4장 가운데 구조재 69mm 총 107mm이나 시공하다보면 1~2mm 정도의 오차가 생기게 되고 결국 110mm 라는 값이 나오게 된것입니다.
기억하셔야 할 것
투바이 각재의 크기는 69*30mm
석고 보드의 두께는 9.5mm
스케치업 독학 예제 1-2
1. 파일 불러오기
- 우선 작업을 시작하기전 전에 작업하셨던 파일을 열어주셔야합니다. 스케치업을 처음실행하시면 Welcome to Sketchup이라는 창이 뜨는데 거기서 Open File 을 클릭하셔서 파일을 열어주시면 됩니다.

2. 실외기실 벽체 세우기
- 일반적으로 아파트나 오피스텔은 실외기실을 가지고 있습니다. 실외기실은 주창 가까이가 일반적이며 현재 도면상에는 아래와 같은 위치입니다. 실외기실의 내부사이즈 즉 내경은 가로 1100 세로 1400 이기때문에 우측 상단 모서리 부터 시작해서 1100, 1400의 사각형을 만든뒤 Offset 기능으로 벽체를 세워주겠습니다. 작업하기전에 바닥면을 Reverse Faces 하여 면을 돌려주어 작업이 편리하게 만들어주겠습니다.

2-1 : 바닥면 돌려주기
1. Select Tool 선택 (Space Bar)
2. 그룹된 외벽과 바닥을 더블 클릭하여 그룹 편집모드로 진입
3. 바닥면을 선택 (마우스 왼쪽 버튼 한번 클릭)
4. 마우스 오른쪽 버튼 클릭
5. Reverse Faces 버튼 클릭
6. 면이 돌아감



2-2 실외기실 기준 만들기
1. 오른쪽 상단 실외기실 위치 확대
2. Rectangle 도구 (단축키 R) 선택
3. 우측 상단 모서리 부분을 기준점으로 클릭
4. 좌측 하단 쪽으로 마우스 이동
5. 도면에 따른 실외기실 크기 1400,1100 입력후 엔터


2-2 실외기실 벽체 라인 만들기
6. Select Tool 선택
7. 좌측, 하단 선 선택 (Ctrl 키를 누르고 다중 선택)
8. Offset 도구 (단축키 F) 클릭
9. 선택해준 2개의 선을 클릭한 뒤 마우스를 좌측 하단으로 이동
10. 벽체 두께 110 입력 후 엔터
11. Line 도구 선택 (단축키 L)
12. 만들어준 사각형과 Offset 시켜준 두개의 라인 이어주기
13. 벽체 면 생성




2-3 Push Pull 도구를 이용하여 벽체 올리기
1. Select 도구를 이용하여 만들어준 벽체 면 클릭
2. Push Pull 도구 (단축키 P) 누르기
3. 바닥에 그려준 라인을 클릭하여 기존 외벽 상단에 마우스를 클릭
4. 벽체 생성 완료



2-4 만들어준 실외기실 벽체 그룹화
1. Select tool (단축키 Space Bar) 을 선택
2. 실외기실 벽체 세번 클릭하여 전체 선택
3. 오른쪽 마우스 클릭 후 Make Group

순서 2 작업 영상

3. 다른 벽체 세우기
- 인테리어 도면은 가독성을 위해 모든 치수를 표현하지 않는 경우들이 많습니다. 이럴때 다른 치수들을 통해 원하는 치수를 알아내야 합니다. 물론 캐드파일을 불러내서 작업을 하는 방법이 있으나 도면에 익숙해지는 것이 좋고 치수를 유추하는 것은 실무에서 꼭 필요한 작업이기 때문에 하나하나 작업해보시는 것을 추천드립니다. 문과 같은 개구부는 추후에 뚫어줄 예정입니다.

3-1 : 화장실 외벽 그리기
1. 화장실 외벽 크기 확인 (가로 1500+800+500, 세로 2210)
2. Rectangle 도구 (단축키 R) 선택하여 2800,2210 사각형 만들기
3. offset 도구 (단축키 F) 로 만들어준 사각형 내부로 벽두께 110 Offset 하기
4. Select 도구로 좌측 선 선택 후 Move 도구 (단축키 M) 선택
5. 좌측 Offset 된 선 좌측 끝으로 밀어주기
6. Select 도구로 상부 선 선택 후 Move 도구 (단축키 M) 선택
7. 상부 Offset 된 선 상부 끝으로 밀어주기
8. Select tool (단축키 Spacebar)로 필요없는 선택 후 Del 키로 삭제
9. Push Pull 툴 로 벽체 2400만큼 올려주기
10. select tool로 세번 클릭 후 그룹화










3-1 작업영상

3-2 : 화장실 내벽 라인 잡기 (세로벽)
1. Rectangle 도구 (단축키 R) 선택
2. 좌측 상단에서 우측하단으로 크기 2100, 110 사각형 만든후 그룹화
3. Move 도구 (단축키 M)를 선택
4. 만들어준 사각형을 우측으로 390만큼 이동 (500-110)
5. 키보드 ctrl 버튼 누르기 -> 이동복사 기능
6. 만들어준 사각형 클릭 바로 옆으로 이동 복사
7. 복사 해준 사각형을 840만큼 이동







3-2 작업영상

3-3 : 화장실 내벽 그리기 (가로벽)
1. Rectangle 도구 (단축키 R) 선택
2. 만들어준 벽체 사이에 가로 840 세로 110인 사각형 만들기
3. Move 도구(단축키M) 으로 위에서 아래로 1400 이동
4. Rectangle 도구 (단축키 R) 선택
5. 우측 외벽과 가운데벽 사이에 1240,110 사각형 만들기
6. Move 도구(단축키M) 으로 아래에서 위로 1500만큼 이동
7. Select 도구로 만들어준 사각형 각각 그룹화







3-3 작업영상

3-4 : 화장실 내벽 Push Pull
1. Select 도구 (SpaceBar)로 그룹화된 4개 전부 선택후 그룹화
2. 더블클릭하여 그룹 편집 모드 진입
3. Ctrl + A 로 그룹내 모든 객체 선택
4. 마우스 오른쪽 클릭 후 Explode 클릭
5. Push Pull 도구 (단축키 P) 로 2400만큼 올려주기





3-4 작업영상

3-5: 주방 기둥 그리기
1. Line 도구 (단축키 L) 로 화장실 우측 외벽에서 부터 기준점 그리기
2. Rectangle 도구 (단축키 R)로 가로 800 세로 850 사각형 그리기
3. Offset 도구 (단축키 F) 선택하여 내부로 110 Offset 하기
4. Select 도구로 하단부 선 선택한 뒤 Move 도구로 이동
5. Push Pull 도구로 2400높이 벽체 만든뒤 선 정리 후 그룹화





3-5 작업영상

하나하나 차근차근 알려드리다보니 포스팅이 엄청 길어졌네요. 이미지들이 많아서 그렇지 별로 많은 양은 아니랍니다. 천천히 따라오시다보면 단축키, 사용법이 손에 익을 날이 오실거에요.
포기하기 없기!
'스케치업 > 스케치업 강좌' 카테고리의 다른 글
| 스케치업 독학 - 문틀과 문 만들기 2 (9mm 문선) I 예제 1- 5 (Follow me & tags) (0) | 2023.04.15 |
|---|---|
| 스케치업 독학 - 문틀과 문 만들기1 I 예제 1-4 ( Follow me & tags ) (0) | 2023.04.12 |
| 스케치업 독학 - 문 뚫기 I 예제 1-3 ( Solid tools) (0) | 2023.04.10 |
| 스케치업 독학 - 벽체 세우기 예제 1-1 (Rectangle & Offset & Push Pull) (0) | 2023.03.27 |
| [Sketch Up] 스케치업 독학 시작하기 (인테리어 세팅법) (0) | 2023.03.23 |
댓글